Chalet Levočská dolina
Späť na dvojpodlažné drevenice
.
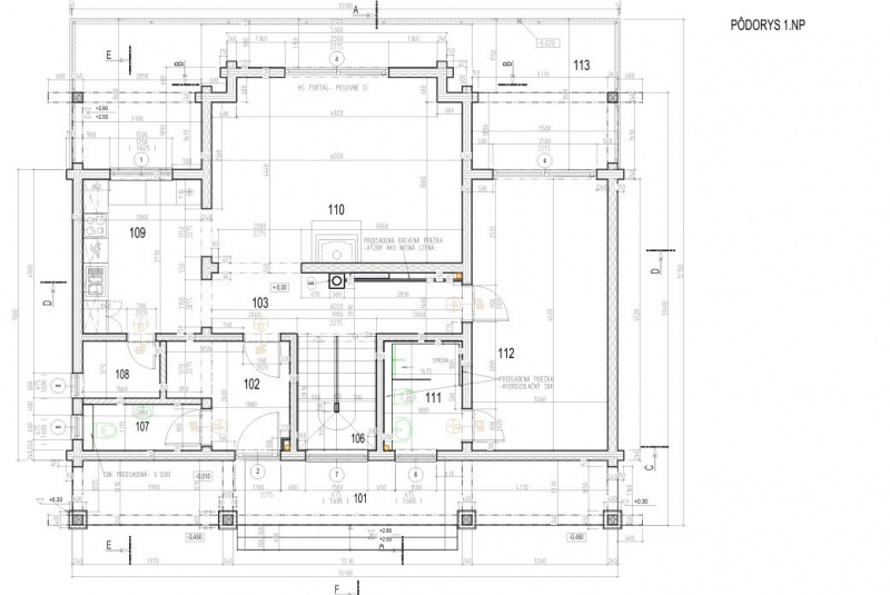
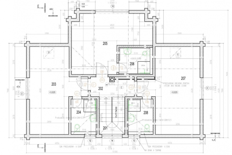
Chalet Levočská dolina je drevenica postavená za účelom rodinnej rekreácie pre jednu väčšiu skupinu osôb. Poskytuje grandióznu úžitkovú plochu, čo sa odzrkadľuje vo veľkých spálňach v podkroví, slušnej spoločenskej miestnosti a spálne na prízemí, sauny a športovej miestnosti v suteréne. Ku každej spálni je pričlenená kúpelňa. Súčasťou stavby je terasa s výhľadom do okolia. Táto drevenica je určená pre väčšiu skupinu osôb s deťmi, je to luxusná drevenica, ktorá spĺňa aj nároky náročnej klientely.
.
| Zastavaná plocha | 160,15 m2 |
| Úžitková plocha: | |
| 1.PP | 105,80 m2 |
| 1.NP | 99,20 m2 |
| 2.NP | 89,90 m2 |
| Úžitková plocha celkom | 294,90 m2 |
| Počet izieb / spální | 5 |
| Počet kúpeľní | 5 |













