Drevenica Babovec
Späť na jednopodlažné drevenice
.
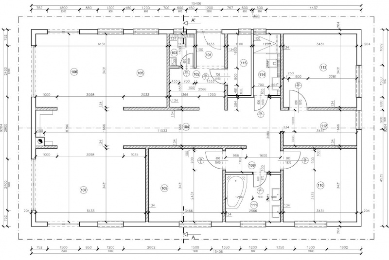
Jednopodlažné drevenice sú často vyhľadávané pre svoj bezbariérový prechod miestnosťami stavby. Táto drevenica má klasickú sedlovú strechu nižšieho sklonu a výrazný obojstranný krb. Obývacia časť je priestranná a presvetlená veľkými francúzskymi oknami so vstupom na terasu. Obývacia izba, jedáleň a kuchyňa sú centrom a hlavnou časťou drevenice a tvoria dennú časť drevenice. Nočná časť drevenice pozostáva z troch izieb a dvoch kúpeľní. Drevenica Babovec má polyfunkčný charakter. Je ideálna pre rodinu s deťmi na celoročné bývanie a tiež na ekonomicky prenájom ako chalet pre náročných zákazníkov.
.
| Zastavaná plocha | 142,00 m2 |
| Úžitková plocha | 124,00 m2 |
| Počet izieb / spální | 3 |
| Počet kúpeľní | 2 |

















