Drevenica Banská Bystrica
Späť na dvojpodlažné drevenice
.
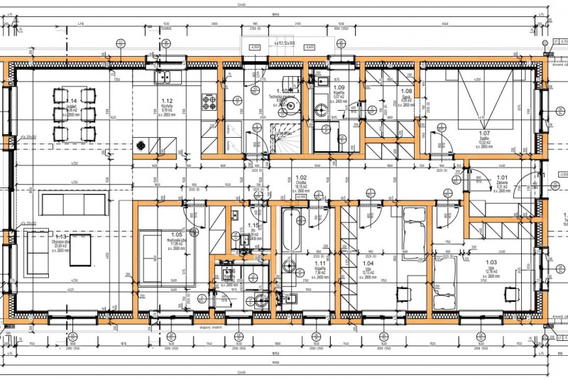
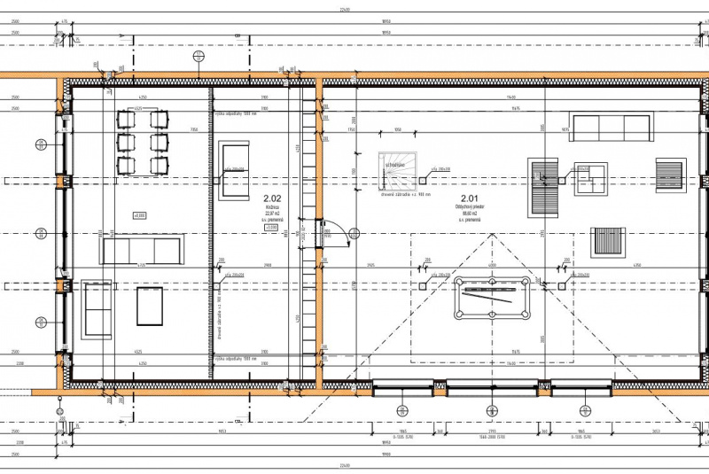
Krásna veľká drevenica so sedlovou strechou a sedlovým vikierom. Drevenica ma vstupnú terasu a terasu s výstupom do záhrady zo spoločenskej miestnosti. Bola navrhnutá ako rodinný dom. Jej dispozícia v podkroví sa dá ľahko zmeniť z oddychovej zóny na spálne v prípade rekreačného a ekonomického využitia.
.
| Zastavaná plocha | 194,00 m2 |
| Úžitková plocha: | |
| 1.NP | |
| 2.NP | |
| Úžitková plocha celkom | 219,00 m2 |
| Počet izieb / spální | 4 |
| Počet kúpeľní | 2 |










