Drevenica Detva
Späť na dvojpodlažné drevenice
.
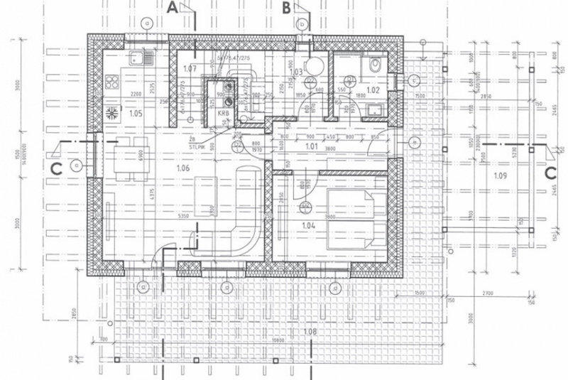
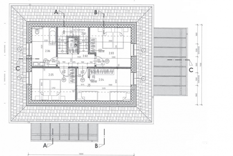
Samostatne stojaca drevenica ako podkrovný rodinný dom alebo rekreačný dom užívania vhodný po celý rok pre 8 osôb. Kombinuje prvky klasickej drevenice do moderného dispozičného riešenia. Vhodný pre akékoľvek svahovité pozemky.
.
| Zastavaná plocha | 150 m2 |
| Úžitková plocha: | |
| 1.NP | 64,10 m2 |
| 2.NP | 62,05 m2 |
| Úžitková plocha celkom | 126,15 m2 |
| Počet izieb / spální | 4 |
| Počet kúpeľní | 2 |











