Drevenica Ďumbier
Späť na dvojpodlažné drevenice
.
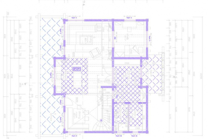
Krásna drevenica so sedlovou strechou a vikiermi. Je dispozične riešená na oddelený rekreačný pobyt dvoch rodín na prízemí a v podkroví. Denná a nočná časť je kombinovaná na obidvoch podlažiach. Dispozičné riešenie je moderné, zaujímavé, pričom boli zachované exteriérové prvky klasickej slovenskej drevenice s terasou. Táto drevenica je ideálna aj pre 6 člennú rodinu na celoročný pobyt.
.
| Zastavaná plocha | 112,50 m2 |
| Úžitková plocha: | |
| 1.NP | 90,18 m2 |
| 2.NP | 91,00 m2 |
| Úžitková plocha celkom | 181,18 m2 |
| Počet izieb / spální | 3 |
| Počet kúpeľní | 2 |








