Drevenica Horal
Späť na dvojpodlažné drevenice
.
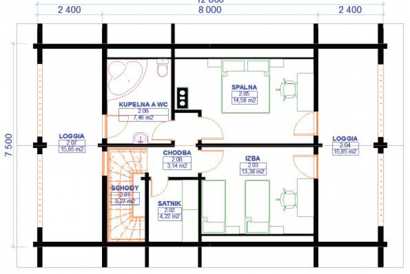
Rekreačná drevenica Horal je svojou úžitkovou plochou takmer ako menší rodinný dom. Dispozičným riešením vytvára na prízemí dennú zónu a v podkroví nočnú, oddychovú zónu. Je ideálna pre jednu 4-6 člennú rodinu.
.
| Zastavaná plocha | 96,60 m2 |
| Úžitková plocha: | |
| 1.NP | 51,59 m2 |
| 2.NP | 46,43 m2 |
| Úžitková plocha celkom | 98,02 m2 |
| Počet izieb / spální | 2 |
| Počet kúpeľní | 1 |
















