Drevenica Javorina
Späť na dvojpodlažné drevenice
.
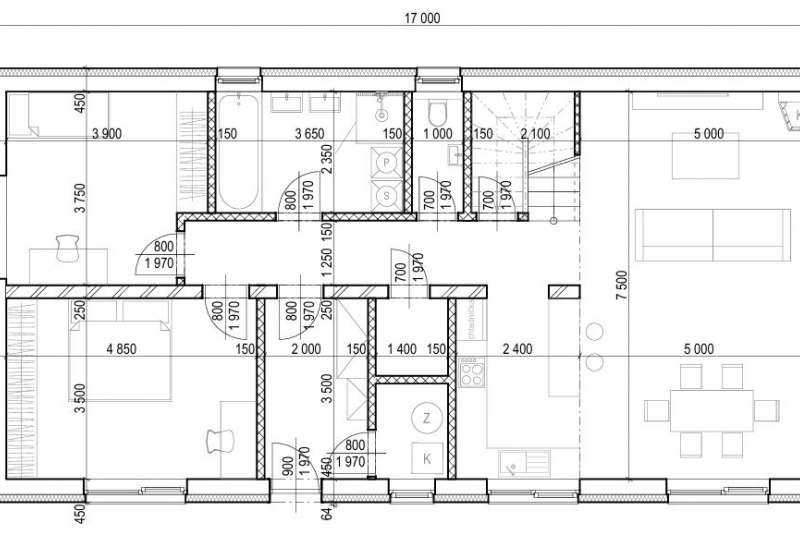
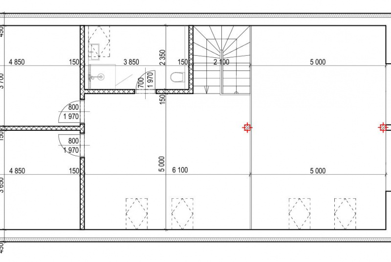
Drevenica pod Javorinou na pohľad s jednoduchým architektonickým riešením obdlžníkového pôdorysu a sedlovej strechy, je v skutočnosti moderná drevenica s veľkorysou úžitkovou plochou, ktorá umožňuje ju celoročne obývať ako rodinný dom. Obytné miestnosti určené ako spálne umožňujú pobyt až do 10 osob pri dvoch komfortne veľkých kúpeľniach.
.
| Zastavaná plocha | 142,80 m2 |
| Úžitková plocha: | |
| 1.NP | 107,28 m2 |
| 2.NP | 100,25 m2 |
| Úžitková plocha celkom | 207,53 m2 |
| Počet izieb / spální | 5 |
| Počet kúpeľní | 2 |














