Drevenica Levočská dolina
Späť na dvojpodlažné drevenice
.
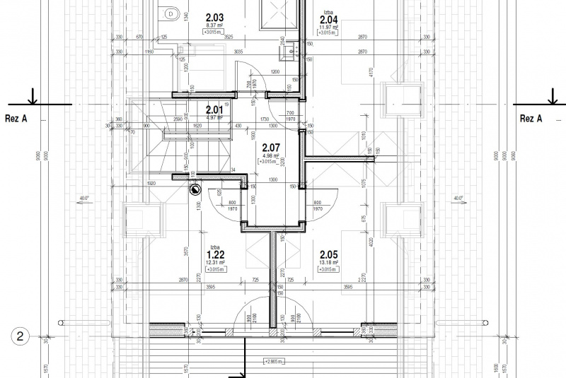
Krásna drevenica so sedlovou strechou je dispozične riešená na dennú a nočnú časť. Ako v dennej tak aj v nočnej časti je kúpeľňa. Z dennej časti aj nočnej časti je prístup na balkón a terasu. Krásna, priestranná ideálna pre rodinu s deťmi.
.
| Zastavaná plocha | 79,75 m2 |
| Úžitková plocha: | |
| 1.NP | 56,58 m2 |
| 2.NP | 50,81 m2 |
| Úžitková plocha celkom | 107,39 m2 |
| Počet izieb / spální | 4 |
| Počet kúpeľní | 2 |













