Drevenica Liptov
Späť na jednopodlažné drevenice
.
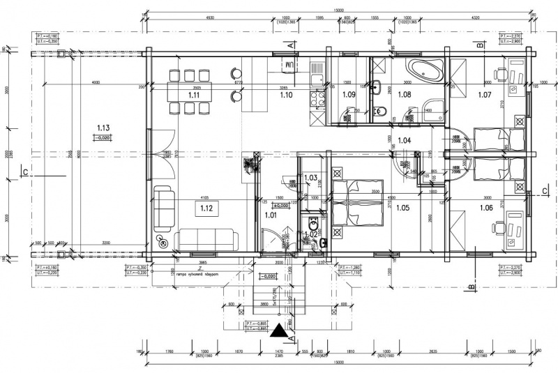
Drevenica Liptov je dispozične navrhnutá na dennú časť a nočnú časť. V dennej časti je kuchyňa so špajzou a obývačkou spojené a so vstupom na priestrannú prestrešenú terasu. V strednej časti je sólo WC na vstupe do objektu a osobitne kúpelňa s WC, technická miestnosť. Nočnú časť domu tvorí spálňa a dve izby. Krásna, priestranná, ideálna pre rodinu s deťmi.
.
| Zastavaná plocha | 152,00 m2 |
| Úžitková plocha | 100,00 m2 |
| Počet izieb / spální | 3 |
| Počet kúpeľní | 1 |













