Drevenica Nový Hrozenkov
Späť na dvojpodlažné drevenice
.
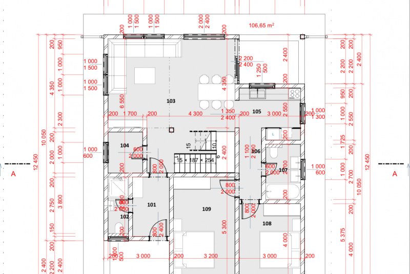
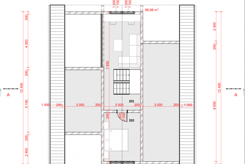
Krásna veľká drevenica Nový Hrozenkov je strednej veľkostnej kategórie s 3 obytnými miestnosťami, priestrannou galériou a veľkou terasou. Svojimi rozmermi nadštandarde uspokojí nároky 5 až 6 člennej rodiny. Drevenica je vhodná ako luxusný rodinný dom.
.
| Zastavaná plocha | 122,00 m2 |
| Úžitková plocha: | |
| 1.NP | 96,16 m2 |
| 2.NP | 73,90 m2 |
| Úžitková plocha celkom | 170,06 m2 |
| Počet izieb / spální | 3 |
| Počet kúpeľní | 1 |















