Drevenica Poloniny
Späť na dvojpodlažné drevenice
.
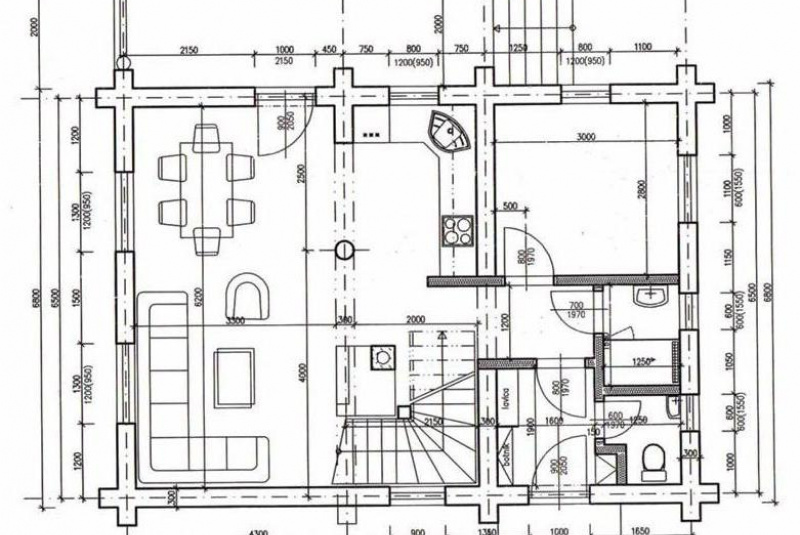
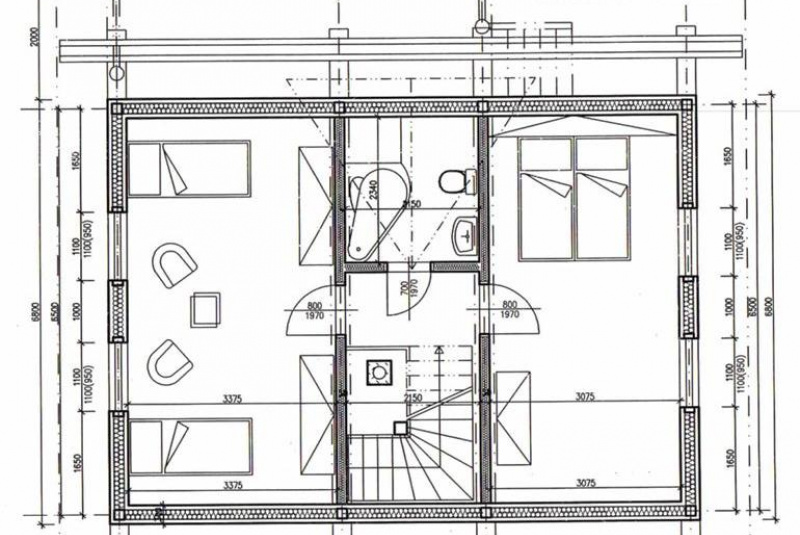
Drevenica Poloniny, rekreačná chata je i napriek skromnejším pôdorysným rozmerom svojou úžitkovou plochou 83 m2 ako slušný rekreačný dom. Táto neveľká drevenica s dômyselným dispozičným riešením je ideálna pre rodinu s deťmi s počtom do 6 osôb.
.
| Zastavaná plocha | 77,00 m2 | 
| Úžitková plocha: | |
| 1.NP | 43,72 m2 | 
| 2.NP | 40,00 m2 | 
| Úžitková plocha celkom | 83,72 m2 | 
| Počet izieb / spální | 3 | 
| Počet kúpeľní | 2 | 
 
       
      











