Drevenica Ružbachy
Späť na dvojpodlažné drevenice
.
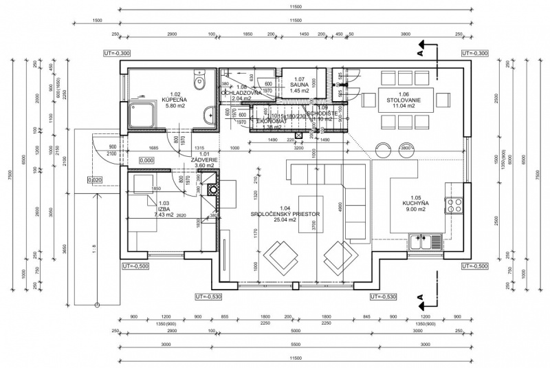
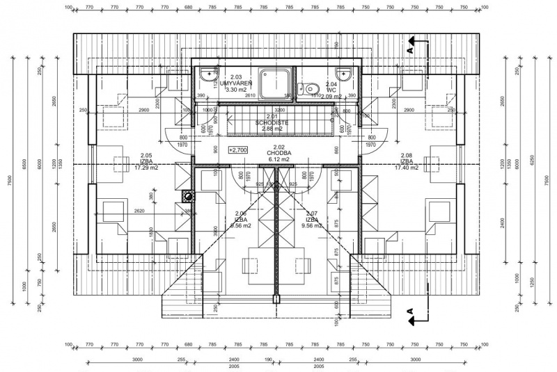
Štýlová drevenica so sedlovou strechou a so sedlovým a pultovým vikierom na čelnej a zadnej strane, ktoré dávajú tejto drevenici plne využiteľnú užitkovú plochu v podkroví. Podkrovie tvorí nočnú časť so 4 spálňami a kúpeľňou. Prízemie tvorí dennú časť s jednou spálňou. V tejto štýlovej drevenici je miesto pre 7 člennú rodinu. Je vhodný ako rekreačný dom na dovolenku aj ako rodinný dom na trvalé celoročné bývanie.
.
| Zastavaná plocha | 82,60 m2 |
| Úžitková plocha: | |
| 1.NP | 63,18 m2 |
| 2.NP | 65,32 m2 |
| Úžitková plocha celkom | 128,50 m2 |
| Počet izieb / spální | 5 |
| Počet kúpeľní | 2 |















