Drevenica Sirkáň
Späť na jednopodlažné drevenice
.
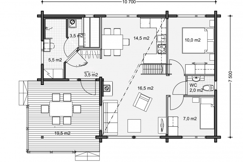
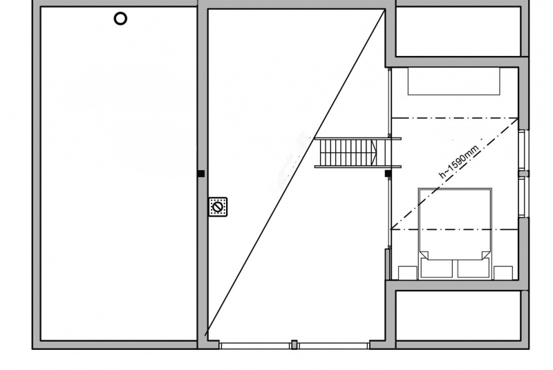
Moderná maloplošná drevenica s vysokým štandardom rekreačného bývania. Vstup je cez zastrešenú terasu priamo do spoločnej dennej časti, jedáleň, kuchyňa a obývacia izba. Nočnú časť tvoria 2 izby pre 3 osoby. Z dennej časti je výlez do podkrovia, ktorú tvorí ďalšia izba na spánok pre dve osoby. Denná časť je presvetlená veľkými oknami s výhľadom do okolia. Táto síce menšia drevenica, ponúka praktický, útulný priestor pre nenáročnú rodinu s deťmi či páry.
.
| Zastavaná plocha | 88,00 m2 |
| Úžitková plocha | 62,50 m2 |
| Počet izieb / spální | 3 |
| Počet kúpeľní | 1 |










